1. 借りる:賃貸
  2. 東京都
  3. 23区
  4. 台東区
  5. 蔵前駅
  6. 栖浅草蔵前
賃貸

栖浅草蔵前 11月14日 11:20更新

印刷
仲介手数料無料キャッシュバック対象住戸あり礼金なしフリーレント付き住戸あり
賃料 19.7万円〜26万賃貸3件
築年月 2024年4月(築1年)
間取り / 面積 1LDK - 2LDK / 42.49㎡ - 59.48㎡
階数 / 戸数 地上14階 / 54戸
駐車場 有り 構造 RC
所在地 東京都台東区駒形1-3-11
交通 都営大江戸線蔵前駅』徒歩4
都営浅草線浅草駅』徒歩5
東京メトロ銀座線浅草駅』徒歩5
東武伊勢崎線浅草駅』徒歩5
都営浅草線蔵前駅』徒歩7
主要設備
CSBSオートロックエレベーター宅配ボックス
すべての設備
0120-696-016
(通話無料)
お問合せ番号 326911
この物件をお問い合わせ無料
POINT
台東区駒形1丁目に建つ「栖-すみか-浅草蔵前」。2024年4月築、地上14階建て・総戸数54戸の高級賃貸マンションです。都営大江戸線「蔵前」駅まで徒歩4分の駅近好立地です。「浅草寺」や「雷門」・「仲見世通り商店街」・「花やしき」などの有名スポットが多くある「浅草」駅も徒歩5分で利用可能です。お部屋の間取りは1LDKタイプから3LDKタイプで様々なライフプランに対応しております。

オートロックや防犯カメラ、モニター付インターホン、24時間セキュリティが完備され住まいの安全を守ります。プライバシー性にも優れたホテルライクな内廊下設計を採用しています。浄水器付のシステムキッチンや追炊き機能、浴室乾燥機、温水洗浄便座、エアコン、ウォークインクローゼット付きなどの充実した室内設備が居住者の快適な生活をサポートします。楽器の演奏も可能です。駐輪場やバイク置場、駐車場、宅配ボックスなど共用設備も充実しております。

栖浅草蔵前の部屋一覧

現在募集中

空室3 11/14更新
間取り図 賃料 / 管理費 敷金 / 礼金 間取り 専有面積
2枚
7階
19.7万円
10,000円

1.0ヶ月

0.0ヶ月

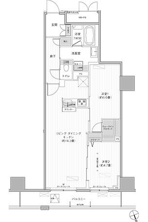
1LDK 42.49㎡
仲介手数料無料キャッシュバック対象礼金なし
本日更新 2枚
10階
26万円
15,000円

1.0ヶ月

0.0ヶ月

2LDK 59.48㎡
仲介手数料無料キャッシュバック対象フリーレント礼金なし
本日更新 27枚
7階
23.8万円
10,000円

1.0ヶ月

0.0ヶ月

1LDK 57.48㎡
礼金なし
チェックした物件0件を
お気に入りに追加 まとめてお問い合わせ 無料
※同時にお問い合わせできるのは最大30件となります。
※仲介手数料に関してはお問い合わせ先の店舗により変わる場合がございますので、ご契約前に必ずご確認ください。

部屋タイプ

6タイプ
  • A 1LDK 42.29㎡
  • B 1LDK 47.37㎡
  • C 2LDK 59.48㎡
  • D 3LDK 79.25㎡
  • E 3LDK 88.20㎡
  • F 1LDK 43.37㎡

物件概要

建物名 栖浅草蔵前 建物名(カナ) スミカアサクサクラマエ
住所 東京都台東区駒形1-3-11
交通 都営大江戸線蔵前駅』 徒歩4
都営浅草線浅草駅』 徒歩5
東京メトロ銀座線浅草駅』 徒歩5
東武伊勢崎線浅草駅』 徒歩5
都営浅草線蔵前駅』 徒歩7
間取り 1LDK - 2LDK 面積 42.49㎡ - 59.48㎡
賃料 19.7万円〜26万 管理費 10,000円 - 15,000円
敷金 / 保証金 1.0ヶ月 / - 礼金 0.0ヶ月
建物構造 RC 築年月 2024年4月(築1年)
総階数 地上14階 総戸数 54戸
駐車場 有り 問合せ番号 326911
特徴 免震・制震構造
設備 CS / BS / オートロック / エレベーター / 宅配ボックス / 駐輪場 / バイク置場 / 光ファイバー / 防犯カメラ / 24時間セキュリティシステム / ディンプルキー / ダブルロック / 内廊下 / 駐車場 / 敷地内ゴミ置場
備考 駐車場 月額35,000~40,000円
バイク置場 月額6,000円
  • 物件の詳細は現況を優先します

物件概要

栖浅草蔵前は、2024年4月築の総戸数54戸のマンションです。ただいま礼金なし、フリーレント付き、仲介手数料無料のお部屋があり、プロパティバンクなら大変お得にご契約が可能です。※お部屋によって仲介手数料が異なるため、詳細はお問合せください。

栖浅草蔵前では3室のお部屋がお問い合わせ可能です。最新の空き状況の確認、初期費用や内見のご予約などお気軽にお問い合わせください。1LDK~2LDKのお部屋が募集中。広さは42.49㎡から59.48㎡のお部屋です。賃料は19.7万円から26万円のお部屋となっています。

最寄りの「都営大江戸線」の「蔵前駅」からは徒歩4分の好立地です。さらに都営浅草線浅草駅など全部で5路線が使えて、交通の便がとても優れています。

設備に関しては、オートロックのマンションですので、女性の方も安心して暮らせます。宅配ボックスは普段忙しく荷物を受け取れない方にとってはとても助かります。バイク置き場がありますので、バイクをお持ちの方はぜひご相談ください。普通の鍵より防犯性の高いディンプルキーを採用。駐車場がありますので、敷地内に自家用車を停められます。モニター付きのインターホンなので、訪問者の確認ができます。楽器相談可ですので、音楽が趣味の方はご相談ください。敷地内に24時間ごみを捨てられるごみ置き場もあります。

お部屋の最新の空室確認、内見のご手配はお気軽にお問い合わせください。
他にも上質な物件にこだわった不動産情報を多数掲載中ですので、ぜひ色々とご覧になってみてください。

周辺環境・地図

周辺地図

  • ※地図上に表示される物件の位置は付近住所に所在することを表すものであり、実際の物件所在地とは異なる場合がございます。
  • ※地図の更新タイミングの関係で、物件情報が実際のものとは異なる場合や最新情報に更新されていない場合がございます。

周辺情報

スーパー・デパート
スーパーマーケット
122m
コンビニ
コンビニエンスストア
230m
その他
公園
1931m
まいばすけっと 蔵前駅前店
282m
0120-696-016
(通話無料)
お問合せ番号 326911
この物件をお問い合わせ無料

栖浅草蔵前のその他の写真(全28枚)

  • 「栖浅草蔵前」に過去に掲載された写真も含みます。観覧中のお部屋と差異がある場合もありますので、参考までにご覧ください。
  • 写真提供元 プロパティバンク LIFULL HOME'S 提携不動産各社など

マンション売却を検討中の方へ

プロパティバンクのマンション売却一括査定なら、より高い売却が可能です。 詳しくはこちら
お気軽にお問い合わせください。
  • 情報の正確性、完全性、最新性、実際の取引価格等は保証されませんので、事前にご了承のうえご利用ください。当社は当該情報について一切の責任を負いませんので、予めご了承ください。

栖浅草蔵前 (空室3

/ 14

/ 18

/ 13

/ 5

/ 1

/ 20

/ 22

/ 25

/ 25

/ 23

/ 20

  • 外観(14枚)
  • 共用部(18枚)
  • 室内(13枚)
  • 水周り(5枚)
  • その他(1枚)
  • 1LDK/42.29㎡(20枚)
  • 1LDK/47.37㎡(22枚)
  • 2LDK/59.48㎡(25枚)
  • 3LDK/79.25㎡(25枚)
  • 3LDK/88.20㎡(23枚)
  • 1LDK/43.37㎡(20枚)

栖浅草蔵前周辺の家賃相場は?

蔵前駅の家賃相場情報です。一人暮らしにおすすめの1R1K1SK1DK1SDK1LDK1SLDKのお部屋の家賃相場は15.51万円、二人で暮らすお部屋でおすすめの2K2DK2LDK2SLDKのお部屋の家賃相場は24.07万円、3〜4人家族におすすめの3LDKのお部屋の家賃相場は25.50万円となっています。築年数別の相場情報もあるので、理想のお部屋選びの参考にしてください!

駅徒歩

物件種別

人気の条件

間取り 家賃相場 該当物件
1R
12.01万円
物件一覧を表示
1K
12.66万円
物件一覧を表示
1SK
12.80万円
物件一覧を表示
1DK
14.43万円
物件一覧を表示
1SDK
24.90万円
物件一覧を表示
1LDK
19.03万円
物件一覧を表示
1SLDK
20.94万円
物件一覧を表示
2K
14.07万円
物件一覧を表示
2DK
21.50万円
物件一覧を表示
2LDK
24.30万円
物件一覧を表示
2SLDK
42.50万円
物件一覧を表示
3LDK
25.50万円
物件一覧を表示

蔵前駅周辺の家賃相場は?

蔵前駅の周辺を走る、東京メトロ銀座線、東京メトロ日比谷線、JR山手線、都営新宿線、都営大江戸線、都営浅草線、東京メトロ半蔵門線、東武伊勢崎線、JR総武本線、京成本線、東京メトロ千代田線それぞれの近隣駅の家賃情報です。近くの駅を基準にすると同じ条件でも家賃が下がって満足度が高くなることも。この相場情報を参考にして、納得いくお部屋選びをしてください!

東京メトロ銀座線

駅名 ワンルーム 1K 1DK 1LDK 2K 2LDK 3LDK
蔵前駅 12.01万円 12.66万円 15.22万円 19.16万円 14.07万円 24.48万円 25.50万円
三越前 15.84万円 13.26万円 15.82万円 22.97万円 27.73万円
神田 15.76万円 13.23万円 16.72万円 20.48万円 18.30万円 26.58万円
末広町 13.86万円 15.07万円 16.52万円 22.06万円 17.50万円 28.62万円
上野広小路 14.36万円 13.05万円 16.70万円 19.26万円 30.83万円
上野 14.68万円 12.61万円 13.62万円 19.89万円 25.91万円 28.74万円
稲荷町 14.70万円 13.83万円 15.14万円 19.99万円 14.05万円 26.07万円 30.97万円
田原町 12.58万円 13.42万円 15.28万円 18.74万円 14.05万円 25.80万円
浅草 11.08万円 11.70万円 14.54万円 18.33万円 13.52万円 23.63万円

東京メトロ日比谷線

駅名 ワンルーム 1K 1DK 1LDK 2K 2LDK 3LDK
蔵前駅 12.01万円 12.66万円 15.22万円 19.16万円 14.07万円 24.48万円 25.50万円
人形町 14.54万円 13.16万円 15.94万円 22.10万円 28.37万円 41.16万円
小伝馬町 17.43万円 12.96万円 15.02万円 21.74万円 27.08万円 37.00万円
秋葉原 13.74万円 13.72万円 16.22万円 20.85万円 18.03万円 26.85万円 38.20万円
仲御徒町 13.53万円 12.37万円 15.60万円 19.20万円 12.30万円 24.37万円 35.25万円
入谷 11.96万円 11.13万円 12.98万円 17.12万円 11.67万円 23.19万円 28.05万円

JR山手線

駅名 ワンルーム 1K 1DK 1LDK 2K 2LDK 3LDK
蔵前駅 12.01万円 12.66万円 15.22万円 19.16万円 14.07万円 24.48万円 25.50万円
鶯谷 12.13万円 11.10万円 12.76万円 17.18万円 22.67万円 29.50万円
御徒町 13.44万円 12.93万円 15.75万円 18.96万円 14.90万円 24.28万円 35.25万円

都営新宿線

駅名 ワンルーム 1K 1DK 1LDK 2K 2LDK 3LDK
蔵前駅 12.01万円 12.66万円 15.22万円 19.16万円 14.07万円 24.48万円 25.50万円
岩本町 13.79万円 12.30万円 15.85万円 19.80万円 18.30万円 26.99万円 41.00万円
馬喰横山 15.77万円 12.71万円 15.34万円 20.83万円 26.77万円 36.38万円
浜町 12.89万円 12.44万円 13.93万円 19.97万円 31.22万円 37.15万円
森下 12.93万円 12.11万円 14.26万円 18.78万円 12.60万円 25.18万円 31.20万円
菊川 13.13万円 11.93万円 14.16万円 18.70万円 11.70万円 24.53万円 30.98万円

都営大江戸線

駅名 ワンルーム 1K 1DK 1LDK 2K 2LDK 3LDK
蔵前駅 12.01万円 12.66万円 15.22万円 19.16万円 14.07万円 24.48万円 25.50万円
上野御徒町 13.28万円 13.09万円 15.22万円 20.13万円 12.30万円 24.73万円
新御徒町 12.39万円 12.65万円 14.85万円 19.07万円 11.50万円 24.05万円 35.25万円
両国 12.68万円 11.40万円 13.73万円 19.25万円 13.22万円 24.57万円 31.21万円
清澄白河 12.75万円 12.40万円 14.01万円 17.44万円 12.60万円 27.29万円 31.95万円

都営浅草線

駅名 ワンルーム 1K 1DK 1LDK 2K 2LDK 3LDK
蔵前駅 12.01万円 12.66万円 15.22万円 19.16万円 14.07万円 24.48万円 25.50万円
本所吾妻橋 11.53万円 11.01万円 12.64万円 17.05万円 22.36万円 29.00万円
浅草橋 13.92万円 12.27万円 14.66万円 19.41万円 25.84万円 35.60万円
東日本橋 15.59万円 12.96万円 15.16万円 20.99万円 27.04万円 36.27万円

東京メトロ半蔵門線

駅名 ワンルーム 1K 1DK 1LDK 2K 2LDK 3LDK
蔵前駅 12.01万円 12.66万円 15.22万円 19.16万円 14.07万円 24.48万円 25.50万円
水天宮前 13.38万円 12.95万円 14.50万円 20.96万円 28.20万円 46.67万円

東武伊勢崎線

駅名 ワンルーム 1K 1DK 1LDK 2K 2LDK 3LDK
蔵前駅 12.01万円 12.66万円 15.22万円 19.16万円 14.07万円 24.48万円 25.50万円
とうきょうスカイツリー 12.38万円 11.05万円 12.57万円 17.17万円 22.42万円

JR総武本線

駅名 ワンルーム 1K 1DK 1LDK 2K 2LDK 3LDK
蔵前駅 12.01万円 12.66万円 15.22万円 19.16万円 14.07万円 24.48万円 25.50万円
新日本橋 13.30万円 13.19万円 14.75万円 22.75万円 28.58万円 40.50万円
馬喰町 15.22万円 12.89万円 15.16万円 20.25万円 18.30万円 26.68万円 35.96万円

京成本線

駅名 ワンルーム 1K 1DK 1LDK 2K 2LDK 3LDK
蔵前駅 12.01万円 12.66万円 15.22万円 19.16万円 14.07万円 24.48万円 25.50万円
京成上野 14.50万円 14.00万円 17.70万円 17.85万円 26.13万円 34.00万円

東京メトロ千代田線

駅名 ワンルーム 1K 1DK 1LDK 2K 2LDK 3LDK
蔵前駅 12.01万円 12.66万円 15.22万円 19.16万円 14.07万円 24.48万円 25.50万円
湯島 14.07万円 13.24万円 16.40万円 21.01万円 29.99万円

栖浅草蔵前に特徴の近い賃貸情報

栖浅草蔵前に最寄り駅の近い賃貸情報

蔵前駅周辺のエリアから賃貸物件を探す

蔵前駅周辺の駅から賃貸物件を探す

東京メトロ銀座線 三越前駅 神田駅 末広町駅 上野広小路駅 上野駅 稲荷町駅 田原町駅 浅草駅
東京メトロ日比谷線 人形町駅 小伝馬町駅 秋葉原駅 仲御徒町駅 入谷駅
JR山手線 鶯谷駅 御徒町駅
都営新宿線 岩本町駅 馬喰横山駅 浜町駅 森下駅 菊川駅
都営大江戸線 上野御徒町駅 新御徒町駅 両国駅 清澄白河駅
都営浅草線 本所吾妻橋駅 浅草橋駅 東日本橋駅
東京メトロ半蔵門線 水天宮前駅
東武伊勢崎線 とうきょうスカイツリー駅
JR総武本線 新日本橋駅 馬喰町駅
京成本線 京成上野駅
東京メトロ千代田線 湯島駅

台東区の物件の更新情報

お気に入りに追加しました。