1. 借りる:賃貸
  2. 東京都
  3. 23区
  4. 墨田区
  5. 小村井駅
  6. シーネクス亀戸
賃貸

シーネクス亀戸

印刷
賃料 -
築年月 2022年3月(築3年)
間取り / 面積 / -
階数 / 戸数 地上9階 / 57戸
駐車場 無し 構造 RC
所在地 東京都墨田区立花1-1-17
交通 東武亀戸線小村井駅』徒歩7
東武亀戸線東あずま駅』徒歩10
JR総武線亀戸駅』徒歩11
東武亀戸線亀戸駅』徒歩11
主要設備
CSBSオートロックエレベーター宅配ボックス
すべての設備
POINT
小村井エリアに建つ分譲マンション。1Kや1LDKを揃えており、シングルやディンクスのライフスタイルに最適です。エントランスには防犯性に優れたオートロック付きで、不審者の侵入を未然に防いでくれる他、しつこい勧誘対策にも役立ちますので、初めての一人暮らしや女性の方も安心です。ペットの飼育が相談可能で、大切な愛犬や愛猫と一緒に暮らすことができます。

1階には通勤やご趣味にも活用できる駐輪場とバイク置き場、お忙しい方でも安心してお荷物がお受け取りいただける宅配ボックス、24時間ゴミ捨てが可能な敷地内ゴミ置き場のご用意がございます。住戸共通設備はガスシステムキッチン・独立洗面台・浴室乾燥機・洗浄便座・エアコンで、更に1LDKには追焚バスが備えられており、充実した室内設備が居住者の快適な生活をサポートします。

部屋タイプ

5タイプ
  • A 1K 25.43㎡
  • B 1K 25.65㎡
  • C 1LDK 40.72㎡
  • D 1LDK 41.04㎡
  • E 1LDK 42.31㎡

A

間取り
1K
面積
25.43㎡

B

間取り
1K
面積
25.65㎡

C

間取り
1LDK
面積
40.72㎡

D

間取り
1LDK
面積
41.04㎡

E

間取り
1LDK
面積
42.31㎡

物件概要

建物名 シーネクス亀戸 建物名(カナ) シーネクスカメイド
住所 東京都墨田区立花1-1-17
交通 東武亀戸線小村井駅』 徒歩7
東武亀戸線東あずま駅』 徒歩10
JR総武線亀戸駅』 徒歩11
東武亀戸線亀戸駅』 徒歩11
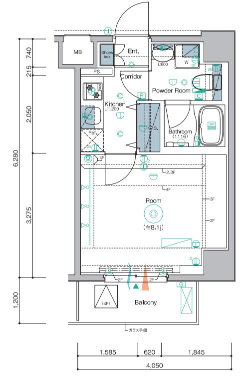
間取り 面積 -
賃料 - 管理費 -
敷金 / 保証金 - / - 礼金 -
建物構造 RC 築年月 2022年3月(築3年)
総階数 地上9階 総戸数 57戸
駐車場 無し 問合せ番号 14997
特徴 分譲賃貸
設備 CS / BS / オートロック / エレベーター / 宅配ボックス / 駐輪場 / バイク置場 / 光ファイバー / インターネット無料 / 防犯カメラ / ディンプルキー / ダブルロック / 敷地内ゴミ置場
備考 ペット飼育時敷金+1ヶ月
  • 物件の詳細は現況を優先します

物件概要

シーネクス亀戸は、2022年3月築の総戸数57戸の分譲マンションです。

最新の空き状況の確認、初期費用や内見のご予約などお気軽にお問い合わせください。

最寄りの「東武亀戸線」の「小村井駅」からは徒歩7分の物件です。さらに東武亀戸線東あずま駅など全部で4路線が使えて、交通の便がとても優れています。

設備に関しては、オートロックのマンションですので、女性の方も安心して暮らせます。宅配ボックスは普段忙しく荷物を受け取れない方にとってはとても助かります。バイク置き場がありますので、バイクをお持ちの方はぜひご相談ください。インターネットが無料で使えます。普通の鍵より防犯性の高いディンプルキーを採用。

お部屋の最新の空室確認、内見のご手配はお気軽にお問い合わせください。
他にも上質な物件にこだわった不動産情報を多数掲載中ですので、ぜひ色々とご覧になってみてください。

周辺環境・地図

周辺地図

  • ※地図上に表示される物件の位置は付近住所に所在することを表すものであり、実際の物件所在地とは異なる場合がございます。
  • ※地図の更新タイミングの関係で、物件情報が実際のものとは異なる場合や最新情報に更新されていない場合がございます。

マンション売却を検討中の方へ

プロパティバンクのマンション売却一括査定なら、より高い売却が可能です。 詳しくはこちら
お気軽にお問い合わせください。
  • 情報の正確性、完全性、最新性、実際の取引価格等は保証されませんので、事前にご了承のうえご利用ください。当社は当該情報について一切の責任を負いませんので、予めご了承ください。

シーネクス亀戸 (空室0

/ 1

/ 3

/ 10

/ 3

/ 1

/ 6

/ 10

/ 12

/ 15

/ 14

  • 外観(1枚)
  • 共用部(3枚)
  • 室内(10枚)
  • 水周り(3枚)
  • その他(1枚)
  • 1K/25.43㎡(6枚)
  • 1K/25.65㎡(10枚)
  • 1LDK/40.72㎡(12枚)
  • 1LDK/41.04㎡(15枚)
  • 1LDK/42.31㎡(14枚)

シーネクス亀戸周辺の家賃相場は?

小村井駅の家賃相場情報です。一人暮らしにおすすめの1R1K1DK1LDK1SLDKのお部屋の家賃相場は11.70万円、二人で暮らすお部屋でおすすめの2K2DK2LDKのお部屋の家賃相場は16.30万円となっています。築年数別の相場情報もあるので、理想のお部屋選びの参考にしてください!

駅徒歩

物件種別

人気の条件

間取り 家賃相場 該当物件
1R
10.30万円
物件一覧を表示
1K
10.35万円
物件一覧を表示
1DK
12.48万円
物件一覧を表示
1LDK
14.68万円
物件一覧を表示
1SLDK
22.75万円
物件一覧を表示
2K
12.25万円
物件一覧を表示
2DK
14.88万円
物件一覧を表示
2LDK
21.18万円
物件一覧を表示

小村井駅周辺の家賃相場は?

小村井駅の周辺を走る、東武亀戸線、東武伊勢崎線、京成押上線、都営新宿線、JR総武線それぞれの近隣駅の家賃情報です。近くの駅を基準にすると同じ条件でも家賃が下がって満足度が高くなることも。この相場情報を参考にして、納得いくお部屋選びをしてください!

東武亀戸線

駅名 ワンルーム 1K 1DK 1LDK 2K 2LDK 3LDK
小村井駅 10.30万円 10.35万円 12.48万円 15.26万円 12.25万円 21.18万円
曳舟 11.89万円 10.01万円 12.51万円 16.12万円 11.45万円 20.81万円 35.00万円
東あずま 10.62万円 9.89万円 11.63万円 15.07万円 17.70万円 30.00万円
亀戸水神 9.12万円 10.16万円 12.56万円 18.02万円 11.95万円 22.30万円 20.94万円
亀戸 10.34万円 10.74万円 13.47万円 17.97万円 12.09万円 25.59万円 35.60万円

東武伊勢崎線

駅名 ワンルーム 1K 1DK 1LDK 2K 2LDK 3LDK
小村井駅 10.30万円 10.35万円 12.48万円 15.26万円 12.25万円 21.18万円
とうきょうスカイツリー 11.91万円 10.72万円 15.31万円 17.22万円 14.30万円 22.85万円
押上 11.26万円 10.95万円 15.01万円 18.64万円 16.83万円 24.69万円 37.46万円
東向島 10.85万円 9.68万円 10.65万円 14.75万円 14.06万円 21.68万円 35.00万円

京成押上線

駅名 ワンルーム 1K 1DK 1LDK 2K 2LDK 3LDK
小村井駅 10.30万円 10.35万円 12.48万円 15.26万円 12.25万円 21.18万円
京成曳舟 12.29万円 10.16万円 11.18万円 15.54万円 11.33万円 20.18万円 35.00万円
八広 10.78万円 8.85万円 12.59万円 14.47万円 9.90万円 17.00万円

都営新宿線

駅名 ワンルーム 1K 1DK 1LDK 2K 2LDK 3LDK
小村井駅 10.30万円 10.35万円 12.48万円 15.26万円 12.25万円 21.18万円
西大島 11.23万円 10.45万円 13.32万円 16.74万円 25.34万円 29.88万円
大島 10.37万円 11.47万円 13.20万円 17.03万円 16.13万円 18.93万円 26.09万円
東大島 11.50万円 12.45万円 13.20万円 16.47万円 15.97万円 19.32万円 20.94万円

JR総武線

駅名 ワンルーム 1K 1DK 1LDK 2K 2LDK 3LDK
小村井駅 10.30万円 10.35万円 12.48万円 15.26万円 12.25万円 21.18万円
錦糸町 11.72万円 11.16万円 13.90万円 18.70万円 14.51万円 25.39万円 34.33万円
平井 7.59万円 8.96万円 12.60万円 16.55万円 21.26万円 30.00万円

シーネクス亀戸に特徴の近い賃貸情報

シーネクス亀戸に最寄り駅の近い賃貸情報

小村井駅周辺のエリアから賃貸物件を探す

小村井駅周辺の駅から賃貸物件を探す

東武亀戸線 曳舟駅 東あずま駅 亀戸水神駅 亀戸駅
東武伊勢崎線 とうきょうスカイツリー駅 押上駅 東向島駅
京成押上線 京成曳舟駅 八広駅
都営新宿線 西大島駅 大島駅 東大島駅
JR総武線 錦糸町駅 平井駅

墨田区の物件の更新情報

お気に入りに追加しました。