1. 借りる:賃貸
  2. 東京都
  3. 23区
  4. 品川区
  5. 新馬場駅
  6. コンフォリア南品川
  1. 買う:中古マンション
  2. 東京都
  3. 23区
  4. 品川区
  5. 新馬場駅
  6. コンフォリア南品川
賃貸
中古マンション

コンフォリア南品川 3月15日 00:15更新

印刷
仲介手数料無料キャッシュバック対象住戸あり新築・築浅ペット相談礼金なし
新築・築浅
賃料 17.9万円〜20万賃貸8件
価格 -
築年月 2025年4月(築1年未満)
間取り / 面積
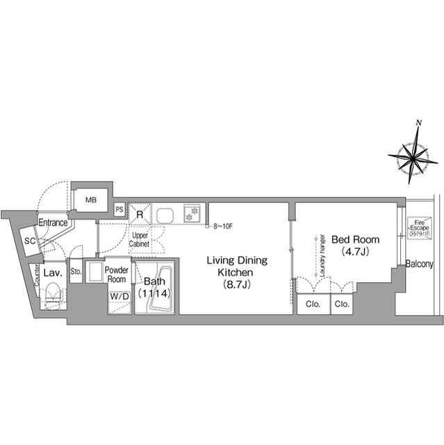
1LDK / 33.16㎡ - 33.91㎡
1LDK / 33.16㎡ - 33.91㎡
1LDK / 33.16㎡ - 33.91㎡
階数 / 戸数 地上16階 / 51戸
駐車場 有り 構造 RC
所在地 東京都品川区南品川4-2-9
交通 京急本線新馬場駅』徒歩2
京急本線青物横丁駅』徒歩9
京急本線北品川駅』徒歩13
JR京浜東北・根岸線大井町駅』徒歩15
JR山手線大崎駅』徒歩20
主要設備
CSBSオートロックエレベーター宅配ボックス
すべての設備
CSBSオートロックエレベーター宅配ボックス
すべての設備
0120-696-016
(通話無料)
お問い合わせ番号 322774550
この物件をお問い合わせ無料
POINT
「コンフォリア南品川」は、地上16階建てのRC(鉄筋コンクリート)造マンションで、耐震性や遮音性に優れた安心の構造です。間取りは1Kから2LDKまで多彩に揃っており、専有面積は25.14㎡から48.67㎡までと、シングルの方からカップル、少人数のファミリーまで、さまざまなライフスタイルに対応しています。白色の外壁に黒色のバルコニー柵が美しく調和し、洗練された印象の外観が特徴です。

アクセス面では、最寄り駅の京急本線「新馬場駅」まで徒歩2分という好立地です。さらに、「青物横丁駅」へ徒歩9分、「北品川駅」へ徒歩13分と複数の駅が徒歩圏内にあり、JR京浜東北線・東急大井町線「大井町駅」へも徒歩15分でアクセス可能です。都心への通勤・通学はもちろん、週末のお出かけやショッピングにも便利な立地です。

周辺環境も充実しており、徒歩1分の「ローソン新馬場南口店」は急な買い物にも対応できます。徒歩6分の「まいばすけっと南品川1丁目店」では、食料品や日用品の買い出しに便利です。徒歩5分の南品川一郵便局や、徒歩7分の東品川公園など、生活に必要な施設や緑豊かな公園が近隣に揃っています。ペット相談可能な物件ですので、愛するペットと一緒に快適な暮らしを実現できます。

室内設備も充実しており、システムキッチンは効率的な料理をサポートします。バス・トイレ別で、独立洗面所も完備しており、快適な水回り環境が整っています。温水洗浄便座や浴室乾燥機も設置されており、衛生的で過ごしやすい空間が確保されています。室内洗濯機置場や室内洗濯物干しが備わっており、天候に左右されずに洗濯が可能です。

セキュリティ面では、オートロックや防犯カメラ、TVモニター付きインターホンが設置され、不審者の侵入を防ぎます。ディンプルキーを採用しており、防犯性が高められています。エアコン、クローゼット、シューズボックスも設置されており、収納スペースも十分に確保されています。

インターネット使用料が無料で、CS・BS放送にも対応しているため、充実したネットライフや多彩なテレビ番組を楽しむことができます。フローリングの床は掃除がしやすく、清潔感があります。バルコニーも広々としており、洗濯物を干すだけでなく、ガーデニングやくつろぎのスペースとして活用できます。

共有設備として、エレベーターがあり、高層階への移動も楽々です。宅配ボックスが設置されているため、不在時の荷物の受け取りも安心です。24時間ごみ出し可能なごみ置き場もあり、時間を気にせずごみ出しができます。駐車場、バイク置き場、駐輪場も完備しており、車やバイク、自転車をお持ちの方にも便利な環境です。公営水道、都市ガス、下水道などのインフラも充実しており、安心して生活を始められます。

コンフォリア南品川の部屋一覧

現在募集中

空室8 03/15更新
間取り図 賃料 / 管理費 敷金 / 礼金 間取り 専有面積
25枚
5階
17.9万円
10,000円

1.0ヶ月

0.0ヶ月

1LDK 33.91㎡
仲介手数料無料キャッシュバック対象新築・築浅ペット相談礼金なし
24枚
7階
18万円
10,000円

1.0ヶ月

0.0ヶ月

1LDK 33.91㎡
仲介手数料無料キャッシュバック対象新築・築浅ペット相談礼金なし
03/12更新 24枚
12階
18.5万円
10,000円

1.0ヶ月

0.0ヶ月

1LDK 33.16㎡
仲介手数料無料キャッシュバック対象新築・築浅ペット相談礼金なし
25枚
13階
18.6万円
10,000円

1.0ヶ月

0.0ヶ月

1LDK 33.16㎡
仲介手数料無料キャッシュバック対象新築・築浅ペット相談礼金なし
24枚
14階
18.7万円
10,000円

1.0ヶ月

0.0ヶ月

1LDK 33.16㎡
仲介手数料無料キャッシュバック対象新築・築浅ペット相談礼金なし
25枚
16階
19万円
10,000円

1.0ヶ月

0.0ヶ月

1LDK 33.16㎡
仲介手数料無料キャッシュバック対象新築・築浅ペット相談礼金なし
03/15更新 23枚
13階
18.8万円
10,000円

1.0ヶ月

0.0ヶ月

1LDK 33.16㎡
仲介手数料無料新築・築浅ペット相談礼金なし
03/15更新 23枚
16階
20万円
10,000円

1.0ヶ月

0.0ヶ月

1LDK 33.16㎡
仲介手数料無料新築・築浅ペット相談礼金なし
チェックした物件0件を
お気に入りに追加 まとめてお問い合わせ 無料
※同時にお問い合わせできるのは最大30件となります。
※仲介手数料に関してはお問い合わせ先の店舗により変わる場合がございますので、ご契約前に必ずご確認ください。

部屋タイプ

3タイプ
  • A 1LDK 30.38㎡
  • B 1LDK 33.16㎡
  • C 1K 25.14㎡

物件概要

建物名 コンフォリア南品川 建物名(カナ) コンフォリアミナミシナガワ
住所 東京都品川区南品川4-2-9
交通 京急本線新馬場駅』 徒歩2
京急本線青物横丁駅』 徒歩9
京急本線北品川駅』 徒歩13
JR京浜東北・根岸線大井町駅』 徒歩15
JR山手線大崎駅』 徒歩20
間取り 賃貸:1LDK
面積 賃貸:33.16㎡ - 33.91㎡
賃料 17.9万円〜20万 管理費 10,000円
価格 - 管理費(売買) -
敷金 / 保証金 1.0ヶ月 / - 礼金 0.0ヶ月
建物構造 RC 築年月 2025年4月(築1年未満)
総階数 地上16階 総戸数 51戸
駐車場 有り 問い合わせ番号 322774550
特徴 ペット飼育可
設備 CS / BS / オートロック / エレベーター / 宅配ボックス / 駐輪場 / バイク置場 / 光ファイバー / インターネット無料 / 防犯カメラ / ディンプルキー / ダブルロック / 駐車場 / 敷地内ゴミ置場
設備 CS / BS / オートロック / エレベーター / 宅配ボックス / 駐輪場 / バイク置場 / 光ファイバー / インターネット無料 / 防犯カメラ / ディンプルキー / ダブルロック / 駐車場 / 敷地内ゴミ置場
備考 駐車場 月額40,000円
バイク置場 月額6,000円
ペット飼育時敷金+1ヶ月、ペットは小型犬1匹か猫2匹まで飼育相談可
  • 物件の詳細は現況を優先します

物件概要

コンフォリア南品川は、2025年4月築で築浅の総戸数51戸のマンションです。ペット相談可能なお部屋がございますので、子犬や子猫などと生活する場合はぜひご相談ください。ただいま礼金なし、仲介手数料無料のお部屋があり、プロパティバンクなら大変お得にご契約が可能です。※お部屋によって仲介手数料が異なるため、詳細はお問い合わせください。

コンフォリア南品川では8室のお部屋がお問い合わせ可能です。最新の空き状況の確認、初期費用や内見のご予約などお気軽にお問い合わせください。1LDKのお部屋が募集中。広さは33.16㎡から33.91㎡のお部屋です。賃料は17.9万円から20万円のお部屋となっています。

最寄りの「京急本線」の「新馬場駅」からは徒歩2分の好立地です。さらに京急本線青物横丁駅など全部で5路線が使えて、交通の便がとても優れています。

設備に関しては、オートロックのマンションですので、女性の方も安心して暮らせます。宅配ボックスは普段忙しく荷物を受け取れない方にとってはとても助かります。バイク置き場がありますので、バイクをお持ちの方はぜひご相談ください。インターネットが無料で使えます。普通の鍵より防犯性の高いディンプルキーを採用。駐車場がありますので、敷地内に自家用車を停められます。モニター付きのインターホンなので、訪問者の確認ができます。

お部屋の最新の空室確認、内見のご手配はお気軽にお問い合わせください。
他にも上質な物件にこだわった不動産情報を多数掲載中ですので、ぜひ色々とご覧になってみてください。

コンフォリア南品川は、2025年4月築で築浅の総戸数51戸のマンションです。
最寄りの「京急本線」の「新馬場駅」からは徒歩2分の好立地です。さらに京急本線青物横丁駅など全部で5路線が使えて、交通の便がとても優れています。

最新の販売状況の確認、ローンのご相談、内見のご手配などはお気軽にお問い合わせください。
上質で住みやすい中古マンションを探すなら、厳選された物件を多数掲載中のプロパティバンクでお探しください。

周辺環境・地図

周辺地図

  • ※地図上に表示される物件の位置は付近住所に所在することを表すものであり、実際の物件所在地とは異なる場合がございます。
  • ※地図の更新タイミングの関係で、物件情報が実際のものとは異なる場合や最新情報に更新されていない場合がございます。

周辺情報

スーパー・デパート
スーパーマーケット
548m
コンビニ
コンビニエンスストア
506m
その他
公園
1346m
商店街
653m
サイゼリヤ 青物横丁店
514m
0120-696-016
(通話無料)
お問い合わせ番号 322774550
この物件をお問い合わせ無料

コンフォリア南品川のその他の写真(全100枚)

  • 「コンフォリア南品川」に過去に掲載された写真も含みます。観覧中のお部屋と差異がある場合もありますので、参考までにご覧ください。
  • 写真提供元 プロパティバンク LIFULL HOME'S 提携不動産各社など

コンフォリア南品川のその他の写真(全100枚)

  • 「コンフォリア南品川」に過去に掲載された写真も含みます。観覧中のお部屋と差異がある場合もありますので、参考までにご覧ください。
  • 写真提供元 プロパティバンク LIFULL HOME'S 提携不動産各社など

コンフォリア南品川 (空室0

/ 15

/ 19

/ 11

/ 6

/ 3

/ 20

/ 20

/ 20

  • 外観(15枚)
  • 共用部(19枚)
  • 室内(11枚)
  • 水周り(6枚)
  • その他(3枚)
  • 1LDK/30.38㎡(20枚)
  • 1LDK/33.16㎡(20枚)
  • 1K/25.14㎡(20枚)

コンフォリア南品川周辺の家賃相場は?

新馬場駅の家賃相場情報です。一人暮らしにおすすめの1R1K1DK1SDK1LDK1SLDKのお部屋の家賃相場は15.67万円、二人で暮らすお部屋でおすすめの2K2DK2LDKのお部屋の家賃相場は22.76万円、3〜4人家族におすすめの3K3LDKのお部屋の家賃相場は34.10万円となっています。築年数別の相場情報もあるので、理想のお部屋選びの参考にしてください!

駅徒歩

物件種別

人気の条件

間取り 家賃相場 該当物件
1R
12.70万円
物件一覧を表示
1K
12.32万円
物件一覧を表示
1DK
15.41万円
物件一覧を表示
1SDK
18.46万円
物件一覧を表示
1LDK
19.58万円
物件一覧を表示
1SLDK
18.59万円
物件一覧を表示
2K
21.07万円
物件一覧を表示
2DK
20.85万円
物件一覧を表示
2LDK
23.62万円
物件一覧を表示
3K
35.43万円
物件一覧を表示
3LDK
32.77万円
物件一覧を表示

新馬場駅周辺の家賃相場は?

新馬場駅の周辺を走る、京急本線、JR山手線、東京臨海高速鉄道りんかい線、都営浅草線、東急大井町線、JR横須賀線、東急池上線、都営三田線それぞれの近隣駅の家賃情報です。近くの駅を基準にすると同じ条件でも家賃が下がって満足度が高くなることも。この相場情報を参考にして、納得いくお部屋選びをしてください!

京急本線

駅名 ワンルーム 1K 1DK 1LDK 2K 2LDK 3LDK
新馬場駅 12.70万円 12.32万円 16.34万円 19.22万円 21.07万円 23.62万円 32.77万円
泉岳寺 14.43万円 13.88万円 24.37万円 33.98万円 55.00万円
品川 15.48万円 14.25万円 14.85万円 22.74万円 17.50万円 46.17万円 66.70万円
北品川 13.64万円 12.88万円 15.18万円 18.53万円 17.50万円 30.82万円
青物横丁 12.15万円 12.70万円 16.31万円 18.98万円 19.84万円 24.34万円 36.95万円
鮫洲 11.43万円 18.47万円 19.22万円 21.47万円
立会川 12.40万円 11.48万円 14.86万円 18.57万円 15.40万円 26.78万円 25.00万円

JR山手線

駅名 ワンルーム 1K 1DK 1LDK 2K 2LDK 3LDK
新馬場駅 12.70万円 12.32万円 16.34万円 19.22万円 21.07万円 23.62万円 32.77万円
高輪ゲートウェイ 25.90万円 48.00万円
大崎 15.25万円 12.84万円 15.52万円 21.13万円 13.80万円 31.23万円 58.04万円
五反田 14.30万円 12.94万円 17.08万円 24.26万円 34.14万円 55.66万円

東京臨海高速鉄道りんかい線

駅名 ワンルーム 1K 1DK 1LDK 2K 2LDK 3LDK
新馬場駅 12.70万円 12.32万円 16.34万円 19.22万円 21.07万円 23.62万円 32.77万円
大井町 13.51万円 11.77万円 16.99万円 19.53万円 15.13万円 27.04万円 41.25万円
品川シーサイド 13.65万円 12.91万円 16.19万円 19.45万円 23.22万円 30.52万円
天王洲アイル 13.88万円 13.71万円 15.14万円 19.22万円 25.49万円 32.02万円

都営浅草線

駅名 ワンルーム 1K 1DK 1LDK 2K 2LDK 3LDK
新馬場駅 12.70万円 12.32万円 16.34万円 19.22万円 21.07万円 23.62万円 32.77万円
高輪台 15.11万円 13.89万円 15.90万円 23.60万円 46.89万円

東急大井町線

駅名 ワンルーム 1K 1DK 1LDK 2K 2LDK 3LDK
新馬場駅 12.70万円 12.32万円 16.34万円 19.22万円 21.07万円 23.62万円 32.77万円
下神明 13.48万円 12.73万円 16.00万円 19.04万円 13.80万円 26.61万円 33.00万円

JR横須賀線

駅名 ワンルーム 1K 1DK 1LDK 2K 2LDK 3LDK
新馬場駅 12.70万円 12.32万円 16.34万円 19.22万円 21.07万円 23.62万円 32.77万円
西大井 12.46万円 13.18万円 13.95万円 17.34万円 25.00万円 43.28万円

東急池上線

駅名 ワンルーム 1K 1DK 1LDK 2K 2LDK 3LDK
新馬場駅 12.70万円 12.32万円 16.34万円 19.22万円 21.07万円 23.62万円 32.77万円
大崎広小路 14.24万円 13.05万円 16.10万円 23.67万円 31.73万円 60.12万円

都営三田線

駅名 ワンルーム 1K 1DK 1LDK 2K 2LDK 3LDK
新馬場駅 12.70万円 12.32万円 16.34万円 19.22万円 21.07万円 23.62万円 32.77万円
白金台 14.65万円 15.43万円 18.56万円 30.26万円 20.10万円 95.48万円 63.00万円

コンフォリア南品川に特徴の近い賃貸情報

コンフォリア南品川に最寄り駅の近い賃貸情報

コンフォリア南品川に特徴の近い中古マンション

コンフォリア南品川に最寄り駅の近い中古マンション

新馬場駅周辺のエリアから賃貸物件を探す

新馬場駅周辺の駅から賃貸物件を探す

京急本線 泉岳寺駅 品川駅 北品川駅 青物横丁駅 鮫洲駅 立会川駅
JR山手線 高輪ゲートウェイ駅 大崎駅 五反田駅
東京臨海高速鉄道りんかい線 大井町駅 品川シーサイド駅 天王洲アイル駅
都営浅草線 高輪台駅
東急大井町線 下神明駅
JR横須賀線 西大井駅
東急池上線 大崎広小路駅
都営三田線 白金台駅
お気に入りに追加しました。