1. 借りる:賃貸
  2. 東京都
  3. 23区
  4. 目黒区
  5. 都立大学駅
  6. エスティメゾン都立大学
賃貸

エスティメゾン都立大学 12月15日 08:06更新

印刷
仲介手数料無料キャッシュバック対象住戸あり礼金なし
賃料 25.5万
築年月 2009年3月(築16年)
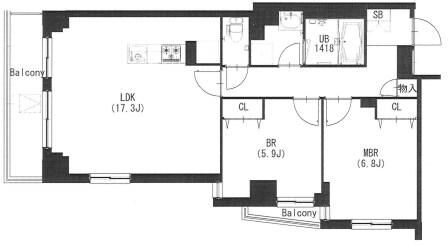
間取り / 面積 1SLDK / 59.05㎡
階数 / 戸数 地上3階 / 20戸
駐車場 有り 構造 RC
所在地 東京都目黒区平町2-7-17
交通 東急東横線都立大学駅』徒歩10
主要設備
CATVCSBSオートロックエレベーター
すべての設備
0120-696-016
(通話無料)
お問合せ番号 4346254
この物件をお問い合わせ無料
POINT
平町の住宅街に佇むシンプルスタイリッシュな低層マンション。周囲は落ち着きのある閑静な住宅街のため、穏やかで上質な住環境です。白基調の外観が洗練された印象を与えます。

自室までのアプローチにはホテルライクな内廊下を採用しており、居住者のプライバシーを高めてくれます。室内はダークブラウンのフローリングで設えたモダンな住空間です。ガスシステムキッチン・追焚バス・浴室乾燥機・洗浄便座・エアコンといった毎日の生活を支える充実した設備を揃えています。 旧称:プルス都立大学

エスティメゾン都立大学の部屋一覧

現在募集中

空室1 12/15更新
間取り図 賃料 / 管理費 敷金 / 礼金 間取り 専有面積
12/15更新 4枚
1階
25.5万円
15,000円

1.0ヶ月

0.0ヶ月

1SLDK 59.05㎡
仲介手数料無料キャッシュバック対象礼金なし
チェックした物件0件を
お気に入りに追加 まとめてお問い合わせ 無料
※同時にお問い合わせできるのは最大30件となります。
※仲介手数料に関してはお問い合わせ先の店舗により変わる場合がございますので、ご契約前に必ずご確認ください。

部屋タイプ

2タイプ
  • A 1SLDK 59.05㎡
  • B 2LDK 66.91㎡

B

間取り
2LDK
面積
66.91㎡

物件概要

建物名 エスティメゾン都立大学 建物名(カナ) エスティメゾントリツダイガク
住所 東京都目黒区平町2-7-17
交通 東急東横線都立大学駅』 徒歩10
間取り 1SLDK 面積 59.05㎡
賃料 25.5万 管理費 15,000円
敷金 / 保証金 1.0ヶ月 / - 礼金 0.0ヶ月
建物構造 RC 築年月 2009年3月(築16年)
総階数 地上3階 総戸数 20戸
駐車場 有り 問合せ番号 4346254
設備 CATV / CS / BS / オートロック / エレベーター / 宅配ボックス / 駐輪場 / バイク置場 / 光ファイバー / 防犯カメラ / ディンプルキー / ダブルロック / 内廊下 / 駐車場 / 敷地内ゴミ置場 / 閑静な住宅街
備考 駐車場 月額30,000円~
保証会社利用必須、保証会社未利用時敷金2ヶ月
  • 物件の詳細は現況を優先します

物件概要

エスティメゾン都立大学は、2009年3月築の総戸数20戸のマンションです。ただいま礼金なし、仲介手数料無料のお部屋があり、プロパティバンクなら大変お得にご契約が可能です。※お部屋によって仲介手数料が異なるため、詳細はお問合せください。

エスティメゾン都立大学では1室のお部屋がお問い合わせ可能です。最新の空き状況の確認、初期費用や内見のご予約などお気軽にお問い合わせください。1SLDKのお部屋が募集中。広さは59.05㎡のお部屋です。賃料は25.5万円のお部屋となっています。

最寄りの「東急東横線」の「都立大学駅」からは徒歩10分の物件です。

設備に関しては、オートロックのマンションですので、女性の方も安心して暮らせます。宅配ボックスは普段忙しく荷物を受け取れない方にとってはとても助かります。バイク置き場がありますので、バイクをお持ちの方はぜひご相談ください。普通の鍵より防犯性の高いディンプルキーを採用。駐車場がありますので、敷地内に自家用車を停められます。モニター付きのインターホンなので、訪問者の確認ができます。

お部屋の最新の空室確認、内見のご手配はお気軽にお問い合わせください。
他にも上質な物件にこだわった不動産情報を多数掲載中ですので、ぜひ色々とご覧になってみてください。

周辺環境・地図

周辺地図

  • ※地図上に表示される物件の位置は付近住所に所在することを表すものであり、実際の物件所在地とは異なる場合がございます。
  • ※地図の更新タイミングの関係で、物件情報が実際のものとは異なる場合や最新情報に更新されていない場合がございます。
0120-696-016
(通話無料)
お問合せ番号 4346254
この物件をお問い合わせ無料

エスティメゾン都立大学のその他の写真(全3枚)

  • 「エスティメゾン都立大学」に過去に掲載された写真も含みます。観覧中のお部屋と差異がある場合もありますので、参考までにご覧ください。
  • 写真提供元 プロパティバンク LIFULL HOME'S 提携不動産各社など

マンション売却を検討中の方へ

プロパティバンクのマンション売却一括査定なら、より高い売却が可能です。 詳しくはこちら
お気軽にお問い合わせください。
  • 情報の正確性、完全性、最新性、実際の取引価格等は保証されませんので、事前にご了承のうえご利用ください。当社は当該情報について一切の責任を負いませんので、予めご了承ください。

エスティメゾン都立大学 (空室1

/ 4

/ 12

/ 14

/ 9

/ 2

/ 29

/ 3

  • 外観(4枚)
  • 共用部(12枚)
  • 室内(14枚)
  • 水周り(9枚)
  • その他(2枚)
  • 1SLDK/59.05㎡(29枚)
  • 2LDK/66.91㎡(3枚)

エスティメゾン都立大学周辺の家賃相場は?

都立大学駅の家賃相場情報です。一人暮らしにおすすめの1R1K1DK1LK1LDK1SLDKのお部屋の家賃相場は15.26万円、二人で暮らすお部屋でおすすめの2K2DK2LDK2SLDKのお部屋の家賃相場は26.48万円、3〜4人家族におすすめの3SDK3LDKのお部屋の家賃相場は32.21万円となっています。築年数別の相場情報もあるので、理想のお部屋選びの参考にしてください!

駅徒歩

物件種別

人気の条件

間取り 家賃相場 該当物件
1R
13.18万円
物件一覧を表示
1K
11.32万円
物件一覧を表示
1DK
14.92万円
物件一覧を表示
1LK
13.40万円
物件一覧を表示
1LDK
17.88万円
物件一覧を表示
1SLDK
24.01万円
物件一覧を表示
2K
13.28万円
物件一覧を表示
2DK
18.43万円
物件一覧を表示
2LDK
27.19万円
物件一覧を表示
2SLDK
37.60万円
物件一覧を表示
3SDK
20.00万円
物件一覧を表示
3LDK
33.15万円
物件一覧を表示

都立大学駅周辺の家賃相場は?

都立大学駅の周辺を走る、東急大井町線、東急東横線、東急目黒線、東急池上線、東急田園都市線それぞれの近隣駅の家賃情報です。近くの駅を基準にすると同じ条件でも家賃が下がって満足度が高くなることも。この相場情報を参考にして、納得いくお部屋選びをしてください!

東急大井町線

駅名 ワンルーム 1K 1DK 1LDK 2K 2LDK 3LDK
都立大学駅 13.18万円 11.32万円 14.92万円 18.88万円 13.28万円 29.05万円 33.15万円
北千束 15.00万円 11.01万円 13.87万円 18.80万円 29.46万円 35.40万円
大岡山 12.16万円 10.93万円 13.77万円 18.22万円 13.28万円 25.71万円 33.12万円
緑が丘 11.10万円 11.05万円 17.45万円 18.91万円 28.12万円 28.00万円
自由が丘 12.95万円 11.00万円 13.73万円 19.21万円 27.55万円 32.50万円
九品仏 9.83万円 11.25万円 16.54万円 29.00万円 35.00万円

東急東横線

駅名 ワンルーム 1K 1DK 1LDK 2K 2LDK 3LDK
都立大学駅 13.18万円 11.32万円 14.92万円 18.88万円 13.28万円 29.05万円 33.15万円
祐天寺 12.58万円 12.88万円 14.07万円 20.99万円 15.30万円 28.06万円 40.01万円
学芸大学 13.64万円 12.63万円 14.35万円 20.23万円 14.63万円 28.38万円 41.91万円
田園調布 11.38万円 9.00万円 12.80万円 16.50万円 22.12万円

東急目黒線

駅名 ワンルーム 1K 1DK 1LDK 2K 2LDK 3LDK
都立大学駅 13.18万円 11.32万円 14.92万円 18.88万円 13.28万円 29.05万円 33.15万円
洗足 15.00万円 10.08万円 13.87万円 17.51万円 28.95万円 37.42万円
奥沢 11.90万円 11.50万円 18.00万円 19.00万円 25.62万円

東急池上線

駅名 ワンルーム 1K 1DK 1LDK 2K 2LDK 3LDK
都立大学駅 13.18万円 11.32万円 14.92万円 18.88万円 13.28万円 29.05万円 33.15万円
洗足池 8.73万円 9.75万円 12.00万円 17.40万円 29.35万円 29.87万円
石川台 9.80万円 10.38万円 14.37万円 15.07万円 20.70万円 22.65万円

東急田園都市線

駅名 ワンルーム 1K 1DK 1LDK 2K 2LDK 3LDK
都立大学駅 13.18万円 11.32万円 14.92万円 18.88万円 13.28万円 29.05万円 33.15万円
駒沢大学 11.60万円 11.89万円 14.58万円 19.17万円 14.00万円 28.48万円 44.38万円

エスティメゾン都立大学に特徴の近い賃貸情報

エスティメゾン都立大学に最寄り駅の近い賃貸情報

都立大学駅周辺のエリアから賃貸物件を探す

都立大学駅周辺の駅から賃貸物件を探す

東急大井町線 北千束駅 大岡山駅 緑が丘駅 自由が丘駅 九品仏駅
東急東横線 祐天寺駅 学芸大学駅 田園調布駅
東急目黒線 洗足駅 奥沢駅
東急池上線 洗足池駅 石川台駅
東急田園都市線 駒沢大学駅

目黒区の物件の更新情報

お気に入りに追加しました。