1. 借りる:賃貸
  2. 東京都
  3. 23区
  4. 新宿区
  5. 江戸川橋駅
  6. アルテシモサグラ
賃貸

アルテシモサグラ

印刷
賃料 -
築年月 2017年8月(築8年)
間取り / 面積 / -
階数 / 戸数 地上10階 / 45戸
駐車場 無し 構造 RC
所在地 東京都新宿区早稲田鶴巻町572
交通 東京メトロ有楽町線江戸川橋駅』徒歩6
東京メトロ東西線早稲田駅』徒歩9
東京メトロ東西線神楽坂駅』徒歩13
主要設備
CSBSオートロックエレベーター宅配ボックス
すべての設備
POINT
江戸川橋エリアに建つ分譲マンション。外出先でもスマートフォンで家電を遠隔操作するアイリモコンというシステムを導入しており、快適なスマートライフを過ごすことができます。

1Kと1LDKの住戸を揃えており、室内はシングルユーザーが快適に暮らせるゆとりある広さを確保した機能的な作りになっています。室内はアクセントクロスや高品質な素材の内装でデザインされたクールでスタイリッシュな住空間です。

全住戸にガスシステムキッチン・追焚バス・独立洗面台・浴室乾燥機・洗浄便座・エアコン・無料インターネット回線を、更に1LDK住戸には食器洗浄機と充実した室内設備を揃えており、快適な生活を過ごすことができます。ペットの飼育が相談可能です。

部屋タイプ

2タイプ
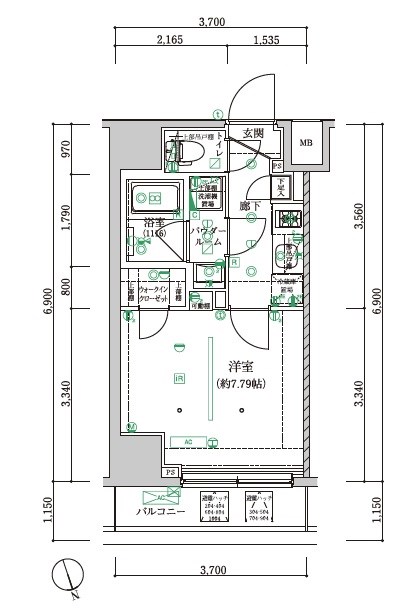
  • A 1K 25.47㎡
  • B 1K 25.53㎡

A

間取り
1K
面積
25.47㎡

B

間取り
1K
面積
25.53㎡

物件概要

建物名 アルテシモサグラ 建物名(カナ) アルテシモサグラ
住所 東京都新宿区早稲田鶴巻町572
交通 東京メトロ有楽町線江戸川橋駅』 徒歩6
間取り 面積 -
賃料 - 管理費 -
敷金 / 保証金 - / - 礼金 -
建物構造 RC 築年月 2017年8月(築8年)
総階数 地上10階 総戸数 45戸
駐車場 無し 問合せ番号 7173
特徴 分譲賃貸
設備 CS / BS / オートロック / エレベーター / 宅配ボックス / 駐輪場 / 光ファイバー / インターネット無料 / 防犯カメラ / ディンプルキー / ダブルロック / 敷地内ゴミ置場
備考 バイク置場 月額2,000円
  • 物件の詳細は現況を優先します

物件概要

アルテシモサグラは、2017年8月築の総戸数45戸の分譲マンションです。

最新の空き状況の確認、初期費用や内見のご予約などお気軽にお問い合わせください。

最寄りの「東京メトロ有楽町線」の「江戸川橋駅」からは徒歩6分の物件です。さらに東京メトロ東西線早稲田駅など全部で3路線が使えて、交通の便がとても優れています。

設備に関しては、オートロックのマンションですので、女性の方も安心して暮らせます。宅配ボックスは普段忙しく荷物を受け取れない方にとってはとても助かります。インターネットが無料で使えます。普通の鍵より防犯性の高いディンプルキーを採用。

お部屋の最新の空室確認、内見のご手配はお気軽にお問い合わせください。
他にも上質な物件にこだわった不動産情報を多数掲載中ですので、ぜひ色々とご覧になってみてください。

周辺環境・地図

周辺地図

  • ※地図上に表示される物件の位置は付近住所に所在することを表すものであり、実際の物件所在地とは異なる場合がございます。
  • ※地図の更新タイミングの関係で、物件情報が実際のものとは異なる場合や最新情報に更新されていない場合がございます。

マンション売却を検討中の方へ

プロパティバンクのマンション売却一括査定なら、より高い売却が可能です。 詳しくはこちら
お気軽にお問い合わせください。
  • 情報の正確性、完全性、最新性、実際の取引価格等は保証されませんので、事前にご了承のうえご利用ください。当社は当該情報について一切の責任を負いませんので、予めご了承ください。

アルテシモサグラ (空室0

/ 8

/ 5

/ 4

/ 4

  • 外観(8枚)
  • 共用部(5枚)
  • 1K/25.47㎡(4枚)
  • 1K/25.53㎡(4枚)

アルテシモサグラ周辺の家賃相場は?

江戸川橋駅の家賃相場情報です。一人暮らしにおすすめの1R1K1DK1LK1LDK1SLDKのお部屋の家賃相場は16.65万円、二人で暮らすお部屋でおすすめの2K2DK2LDK2SLDKのお部屋の家賃相場は28.93万円、3〜4人家族におすすめの3LDKのお部屋の家賃相場は33.62万円となっています。築年数別の相場情報もあるので、理想のお部屋選びの参考にしてください!

駅徒歩

物件種別

人気の条件

間取り 家賃相場 該当物件
1R
16.08万円
物件一覧を表示
1K
12.56万円
物件一覧を表示
1DK
15.28万円
物件一覧を表示
1LK
12.70万円
物件一覧を表示
1LDK
19.70万円
物件一覧を表示
1SLDK
20.30万円
物件一覧を表示
2K
15.11万円
物件一覧を表示
2DK
21.85万円
物件一覧を表示
2LDK
30.53万円
物件一覧を表示
2SLDK
28.60万円
物件一覧を表示
3LDK
33.62万円
物件一覧を表示

江戸川橋駅周辺の家賃相場は?

江戸川橋駅の周辺を走る、都電荒川線、都営大江戸線、東京メトロ東西線、東京メトロ南北線、東京メトロ有楽町線、東京メトロ丸ノ内線、都営新宿線、都営三田線、東京メトロ副都心線それぞれの近隣駅の家賃情報です。近くの駅を基準にすると同じ条件でも家賃が下がって満足度が高くなることも。この相場情報を参考にして、納得いくお部屋選びをしてください!

都電荒川線

駅名 ワンルーム 1K 1DK 1LDK 2K 2LDK 3LDK
江戸川橋駅 16.08万円 12.56万円 15.28万円 19.73万円 15.11万円 30.39万円 33.62万円
向原 12.02万円 13.06万円 17.75万円 21.83万円 32.40万円
東池袋四丁目 10.10万円 17.90万円 23.30万円 22.94万円 42.00万円
都電雑司ヶ谷 6.80万円 12.00万円 15.60万円
鬼子母神前 11.47万円 15.70万円 18.90万円 26.37万円
学習院下 11.50万円 14.00万円 13.40万円
面影橋 10.66万円 12.65万円 13.87万円 26.23万円 28.00万円
早稲田 14.45万円 11.58万円 15.96万円 21.77万円 32.48万円 38.46万円

都営大江戸線

駅名 ワンルーム 1K 1DK 1LDK 2K 2LDK 3LDK
江戸川橋駅 16.08万円 12.56万円 15.28万円 19.73万円 15.11万円 30.39万円 33.62万円
若松河田 13.49万円 13.38万円 16.43万円 20.17万円 17.24万円 27.38万円 34.27万円
牛込柳町 14.99万円 13.65万円 16.60万円 21.59万円 18.33万円 27.91万円 36.71万円
牛込神楽坂 13.12万円 13.02万円 15.06万円 19.84万円 15.23万円 31.62万円 42.75万円
飯田橋 16.78万円 13.10万円 15.33万円 21.56万円 14.60万円 33.85万円 85.75万円
春日 15.38万円 12.69万円 14.95万円 21.65万円 14.15万円 24.83万円 41.90万円

東京メトロ東西線

駅名 ワンルーム 1K 1DK 1LDK 2K 2LDK 3LDK
江戸川橋駅 16.08万円 12.56万円 15.28万円 19.73万円 15.11万円 30.39万円 33.62万円
早稲田 12.90万円 12.78万円 16.47万円 20.71万円 18.33万円 27.27万円 36.40万円
神楽坂 15.97万円 12.39万円 15.52万円 19.63万円 17.38万円 30.01万円 38.25万円
九段下 14.87万円 14.16万円 17.13万円 25.76万円 46.14万円 101.00万円

東京メトロ南北線

駅名 ワンルーム 1K 1DK 1LDK 2K 2LDK 3LDK
江戸川橋駅 16.08万円 12.56万円 15.28万円 19.73万円 15.11万円 30.39万円 33.62万円
市ケ谷 15.24万円 14.88万円 15.76万円 26.43万円 42.76万円 81.65万円
後楽園 14.64万円 12.44万円 15.08万円 20.93万円 14.15万円 24.92万円 63.00万円
本駒込 12.62万円 12.18万円 15.00万円 20.00万円 18.00万円 29.61万円 33.65万円

東京メトロ有楽町線

駅名 ワンルーム 1K 1DK 1LDK 2K 2LDK 3LDK
江戸川橋駅 16.08万円 12.56万円 15.28万円 19.73万円 15.11万円 30.39万円 33.62万円
護国寺 11.04万円 12.72万円 13.80万円 21.36万円 29.13万円 36.50万円
東池袋 9.26万円 11.95万円 15.30万円 20.25万円 15.62万円 24.18万円 30.40万円

東京メトロ丸ノ内線

駅名 ワンルーム 1K 1DK 1LDK 2K 2LDK 3LDK
江戸川橋駅 16.08万円 12.56万円 15.28万円 19.73万円 15.11万円 30.39万円 33.62万円
新大塚 13.43万円 13.11万円 16.50万円 20.64万円 12.20万円 28.44万円 37.37万円
茗荷谷 12.12万円 12.82万円 14.80万円 20.52万円 29.28万円 36.60万円

都営新宿線

駅名 ワンルーム 1K 1DK 1LDK 2K 2LDK 3LDK
江戸川橋駅 16.08万円 12.56万円 15.28万円 19.73万円 15.11万円 30.39万円 33.62万円
曙橋 14.66万円 14.16万円 17.20万円 21.70万円 18.99万円 30.92万円 40.75万円

都営三田線

駅名 ワンルーム 1K 1DK 1LDK 2K 2LDK 3LDK
江戸川橋駅 16.08万円 12.56万円 15.28万円 19.73万円 15.11万円 30.39万円 33.62万円
白山 12.77万円 11.75万円 15.27万円 20.19万円 25.96万円 33.65万円
千石 13.37万円 12.20万円 15.40万円 19.47万円 14.75万円 28.11万円 39.00万円

東京メトロ副都心線

駅名 ワンルーム 1K 1DK 1LDK 2K 2LDK 3LDK
江戸川橋駅 16.08万円 12.56万円 15.28万円 19.73万円 15.11万円 30.39万円 33.62万円
雑司が谷 11.90万円 10.43万円 13.64万円 16.91万円 13.40万円 24.67万円 27.65万円

アルテシモサグラに特徴の近い賃貸情報

アルテシモサグラに最寄り駅の近い賃貸情報

江戸川橋駅周辺のエリアから賃貸物件を探す

江戸川橋駅周辺の駅から賃貸物件を探す

都電荒川線 向原駅 東池袋四丁目駅 都電雑司ヶ谷駅 鬼子母神前駅 学習院下駅 面影橋駅 早稲田駅
都営大江戸線 若松河田駅 牛込柳町駅 牛込神楽坂駅 飯田橋駅 春日駅
東京メトロ東西線 早稲田駅 神楽坂駅 九段下駅
東京メトロ南北線 市ケ谷駅 後楽園駅 本駒込駅
東京メトロ有楽町線 護国寺駅 東池袋駅
東京メトロ丸ノ内線 新大塚駅 茗荷谷駅
都営新宿線 曙橋駅
都営三田線 白山駅 千石駅
東京メトロ副都心線 雑司が谷駅

新宿区の物件の更新情報

お気に入りに追加しました。