1. 借りる:賃貸
  2. 東京都
  3. 23区
  4. 港区
  5. 芝浦ふ頭駅
  6. ザ・ケンジントン・レジデンス芝浦
  1. 買う:中古マンション
  2. 東京都
  3. 23区
  4. 港区
  5. 芝浦ふ頭駅
  6. ザ・ケンジントン・レジデンス芝浦
賃貸
中古マンション

ザ・ケンジントン・レジデンス芝浦 1月16日 07:36更新

印刷
仲介手数料無料キャッシュバック対象住戸あり新築・築浅礼金なしフリーレント付き住戸あり
新築・築浅
賃料 14.3万円〜14.7万賃貸3件
価格 -
築年月 2025年2月(築1年未満)
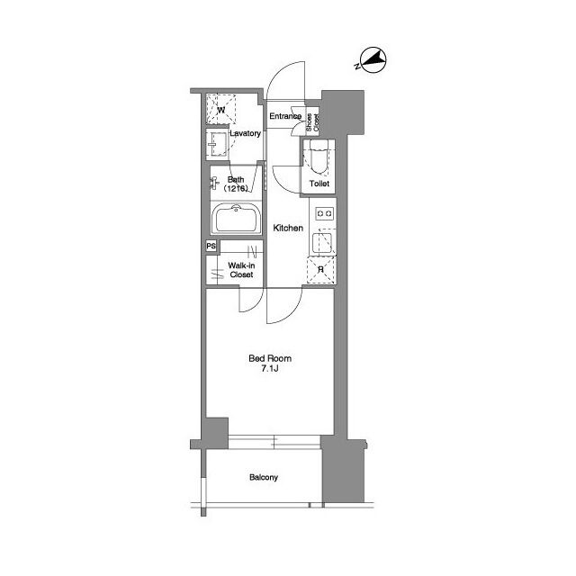
間取り / 面積
1K / 25.50
1K / 25.50㎡
1K / 25.50
階数 / 戸数 地上11階 / 114戸
駐車場 有り 構造 RC
所在地 東京都港区海岸3-3-18
交通 新交通ゆりかもめ芝浦ふ頭駅』徒歩7
JR山手線田町駅』徒歩11
JR京浜東北・根岸線田町駅』徒歩11
都営三田線三田駅』徒歩16
都営浅草線三田駅』徒歩16
主要設備
CSBSオートロックエレベーター宅配ボックス
すべての設備
CSBSオートロックエレベーター宅配ボックス
すべての設備
0120-696-016
(通話無料)
お問合せ番号 1008683006
この物件をお問い合わせ無料
POINT
ザ・ケンジントン・レジデンス芝浦は、地上11階建ての鉄筋コンクリート造(RC造)の高級マンションです。総戸数114戸の大規模レジデンスで、1LDK(50.00㎡)のゆとりある間取りが魅力的です。白を基調とした外観デザインが洗練された雰囲気を醸し出し、都会の景観に美しく調和しています。

アクセス面でも優れており、ゆりかもめ「芝浦ふ頭駅」から徒歩8分、JR京浜東北線「田町駅」から徒歩11分と、複数の路線・駅が利用可能です。さらに、都営三田線・浅草線「三田駅」へは徒歩16分、ゆりかもめ「日の出駅」へも徒歩17分で到着できます。都心へのアクセスが良好で、通勤・通学に便利な立地です。

生活環境も充実しており、セブンイレブン港区汐彩橋店まで徒歩1分と、コンビニエンスストアがすぐ近くにあります。ピーコックストア芝浦アイランド店まで徒歩4分、肉のハナマサ芝浦店まで徒歩10分と、スーパーも複数点在しており、日々の買い物に困りません。徒歩3分のプラタナス公園では、緑豊かな自然に触れることができ、リラックスした時間を過ごせます。

室内設備も充実しており、バストイレ別はもちろんのこと、追焚機能付き浴室や浴室乾燥機が完備されています。システムキッチンはグリル付きで、料理の幅が広がります。温水洗浄便座や洗面所独立、室内洗濯置き場も備えており、快適な生活をサポートします。エアコンも設置されており、夏も冬も快適な室内環境を保てます。

収納面では、シューズボックスやクロゼットがあり、大切な衣類や靴をすっきりと収納できます。防犯面でも、オートロックやTVインターホン、防犯カメラ、ディンプルキー、ダブルロックキー、人感照明センサーなどが設置されており、安心してお過ごしいただけます。

共用設備として、エレベーター、宅配ボックス、敷地内ごみ置き場(24時間ゴミ出し可)があり、生活をより快適にします。駐輪場やバイク置き場、平面駐車場も完備されており、交通手段が多様な方にも対応しています。CS・BSアンテナが設置されており、多彩な番組を視聴可能です。さらに、防音サッシが採用されており、外部からの騒音を軽減します。

2沿線以上利用可能な立地で、利便性と快適性を兼ね備えたザ・ケンジントン・レジデンス芝浦で、新しい生活を始めてみませんか。

ザ・ケンジントン・レジデンス芝浦の部屋一覧

現在募集中

空室3 01/16更新
間取り図 賃料 / 管理費 敷金 / 礼金 間取り 専有面積
01/16更新 21枚
2階
14.3万円
16,000円

-

0.0ヶ月

1K 25.50㎡
仲介手数料無料キャッシュバック対象新築・築浅フリーレント礼金なし
01/16更新 21枚
6階
14.7万円
16,000円

-

0.0ヶ月

1K 25.50㎡
仲介手数料無料キャッシュバック対象新築・築浅フリーレント礼金なし
01/14更新 21枚
6階
14.7万円
16,000円

-

0.0ヶ月

1K 25.50㎡
仲介手数料無料キャッシュバック対象新築・築浅フリーレント礼金なし
チェックした物件0件を
お気に入りに追加 まとめてお問い合わせ 無料
※同時にお問い合わせできるのは最大30件となります。
※仲介手数料に関してはお問い合わせ先の店舗により変わる場合がございますので、ご契約前に必ずご確認ください。

部屋タイプ

6タイプ
  • A 1R 25.60㎡
  • B 1LDK 50.00㎡
  • C 1R 32.00㎡
  • D 1LDK 54.00㎡
  • E 1R 25.60㎡
  • F 1K 25.50㎡

物件概要

建物名 ザ・ケンジントン・レジデンス芝浦 建物名(カナ) ザ・ケンジントン・レジデンスシバウラ
住所 東京都港区海岸3-3-18
交通 新交通ゆりかもめ芝浦ふ頭駅』 徒歩7
JR山手線田町駅』 徒歩11
JR京浜東北・根岸線田町駅』 徒歩11
都営三田線三田駅』 徒歩16
都営浅草線三田駅』 徒歩16
間取り 賃貸:1K
面積 賃貸:25.50㎡
賃料 14.3万円〜14.7万 管理費 16,000円
価格 - 管理費(売買) -
敷金 / 保証金 - / - 礼金 0.0ヶ月
建物構造 RC 築年月 2025年2月(築1年未満)
総階数 地上11階 総戸数 114戸
駐車場 有り 問合せ番号 1008683006
設備 CS / BS / オートロック / エレベーター / 宅配ボックス / 駐輪場 / バイク置場 / 光ファイバー / 防犯カメラ / ディンプルキー / ダブルロック / 駐車場 / 敷地内ゴミ置場
設備 CS / BS / オートロック / エレベーター / 宅配ボックス / 駐輪場 / バイク置場 / 光ファイバー / 防犯カメラ / ディンプルキー / ダブルロック / 駐車場 / 敷地内ゴミ置場
備考 駐車場 月額40,000円
バイク置場 月額5,000円
駐輪場 無料
  • 物件の詳細は現況を優先します

物件概要

ザ・ケンジントン・レジデンス芝浦は、2025年2月築で築浅の総戸数114戸のマンションです。ただいま礼金なし、フリーレント付き、仲介手数料無料のお部屋があり、プロパティバンクなら大変お得にご契約が可能です。※お部屋によって仲介手数料が異なるため、詳細はお問合せください。

ザ・ケンジントン・レジデンス芝浦では3室のお部屋がお問い合わせ可能です。最新の空き状況の確認、初期費用や内見のご予約などお気軽にお問い合わせください。1Kのお部屋が募集中。広さは25.50㎡のお部屋です。賃料は14.3万円から14.7万円のお部屋となっています。

最寄りの「新交通ゆりかもめ」の「芝浦ふ頭駅」からは徒歩7分の物件です。さらにJR山手線田町駅など全部で5路線が使えて、交通の便がとても優れています。

設備に関しては、オートロックのマンションですので、女性の方も安心して暮らせます。宅配ボックスは普段忙しく荷物を受け取れない方にとってはとても助かります。バイク置き場がありますので、バイクをお持ちの方はぜひご相談ください。普通の鍵より防犯性の高いディンプルキーを採用。駐車場がありますので、敷地内に自家用車を停められます。モニター付きのインターホンなので、訪問者の確認ができます。敷地内に24時間ごみを捨てられるごみ置き場もあります。

お部屋の最新の空室確認、内見のご手配はお気軽にお問い合わせください。
他にも上質な物件にこだわった不動産情報を多数掲載中ですので、ぜひ色々とご覧になってみてください。

ザ・ケンジントン・レジデンス芝浦は、2025年2月築で築浅の総戸数114戸のマンションです。
最寄りの「新交通ゆりかもめ」の「芝浦ふ頭駅」からは徒歩7分の物件です。さらにJR山手線田町駅など全部で5路線が使えて、交通の便がとても優れています。

最新の販売状況の確認、ローンのご相談、内見のご手配などはお気軽にお問い合わせください。
上質で住みやすい中古マンションを探すなら、厳選された物件を多数掲載中のプロパティバンクでお探しください。

周辺環境・地図

周辺地図

  • ※地図上に表示される物件の位置は付近住所に所在することを表すものであり、実際の物件所在地とは異なる場合がございます。
  • ※地図の更新タイミングの関係で、物件情報が実際のものとは異なる場合や最新情報に更新されていない場合がございます。
0120-696-016
(通話無料)
お問合せ番号 1008683006
この物件をお問い合わせ無料

ザ・ケンジントン・レジデンス芝浦のその他の写真(全40枚)

  • 「ザ・ケンジントン・レジデンス芝浦」に過去に掲載された写真も含みます。観覧中のお部屋と差異がある場合もありますので、参考までにご覧ください。
  • 写真提供元 プロパティバンク LIFULL HOME'S 提携不動産各社など

ザ・ケンジントン・レジデンス芝浦のその他の写真(全40枚)

  • 「ザ・ケンジントン・レジデンス芝浦」に過去に掲載された写真も含みます。観覧中のお部屋と差異がある場合もありますので、参考までにご覧ください。
  • 写真提供元 プロパティバンク LIFULL HOME'S 提携不動産各社など

マンション売却を検討中の方へ

プロパティバンクのマンション売却一括査定なら、より高い売却が可能です。 詳しくはこちら
お気軽にお問い合わせください。
  • 情報の正確性、完全性、最新性、実際の取引価格等は保証されませんので、事前にご了承のうえご利用ください。当社は当該情報について一切の責任を負いませんので、予めご了承ください。

ザ・ケンジントン・レジデンス芝浦 (空室0

/ 20

/ 9

/ 11

/ 5

/ 3

/ 20

/ 20

/ 21

/ 20

/ 22

/ 21

  • 外観(20枚)
  • 共用部(9枚)
  • 室内(11枚)
  • 水周り(5枚)
  • その他(3枚)
  • 1R/25.60㎡(20枚)
  • 1LDK/50.00㎡(20枚)
  • 1R/32.00㎡(21枚)
  • 1LDK/54.00㎡(20枚)
  • 1R/25.60㎡(22枚)
  • 1K/25.50㎡(21枚)

ザ・ケンジントン・レジデンス芝浦周辺の家賃相場は?

芝浦ふ頭駅の家賃相場情報です。一人暮らしにおすすめの1R1K1DK1LDK1SLDKのお部屋の家賃相場は15.38万円、二人で暮らすお部屋でおすすめの2LDKのお部屋の家賃相場は30.13万円、3〜4人家族におすすめの3LDKのお部屋の家賃相場は73.50万円となっています。築年数別の相場情報もあるので、理想のお部屋選びの参考にしてください!

駅徒歩

物件種別

人気の条件

間取り 家賃相場 該当物件
1R
14.20万円
物件一覧を表示
1K
12.68万円
物件一覧を表示
1DK
13.92万円
物件一覧を表示
1LDK
21.38万円
物件一覧を表示
1SLDK
32.00万円
物件一覧を表示
2LDK
30.13万円
物件一覧を表示
3LDK
73.50万円
物件一覧を表示

芝浦ふ頭駅周辺の家賃相場は?

芝浦ふ頭駅の周辺を走る、新交通ゆりかもめ、JR山手線、都営大江戸線、京急本線、都営三田線それぞれの近隣駅の家賃情報です。近くの駅を基準にすると同じ条件でも家賃が下がって満足度が高くなることも。この相場情報を参考にして、納得いくお部屋選びをしてください!

新交通ゆりかもめ

駅名 ワンルーム 1K 1DK 1LDK 2K 2LDK 3LDK
芝浦ふ頭駅 14.20万円 12.68万円 13.92万円 22.09万円 30.13万円 73.50万円
汐留 23.20万円 13.42万円 32.80万円 40.00万円 100.00万円
竹芝 17.50万円 17.50万円 35.36万円 89.00万円 70.00万円
日の出 14.64万円 13.75万円 13.57万円 26.90万円 28.48万円
お台場海浜公園 17.85万円 18.85万円 29.75万円 39.40万円

JR山手線

駅名 ワンルーム 1K 1DK 1LDK 2K 2LDK 3LDK
芝浦ふ頭駅 14.20万円 12.68万円 13.92万円 22.09万円 30.13万円 73.50万円
浜松町 16.08万円 14.16万円 15.45万円 28.75万円 57.11万円 79.50万円
田町 13.88万円 13.34万円 16.20万円 24.21万円 18.00万円 32.91万円 71.75万円
高輪ゲートウェイ 16.50万円 28.00万円
品川 16.48万円 12.93万円 15.90万円 23.06万円 17.50万円 39.08万円 60.14万円

都営大江戸線

駅名 ワンルーム 1K 1DK 1LDK 2K 2LDK 3LDK
芝浦ふ頭駅 14.20万円 12.68万円 13.92万円 22.09万円 30.13万円 73.50万円
勝どき 14.82万円 13.67万円 17.41万円 25.63万円 35.20万円 38.99万円
大門 15.94万円 14.22万円 15.45万円 28.02万円 59.22万円 79.50万円
赤羽橋 17.84万円 15.33万円 19.30万円 30.92万円 49.11万円 165.00万円

京急本線

駅名 ワンルーム 1K 1DK 1LDK 2K 2LDK 3LDK
芝浦ふ頭駅 14.20万円 12.68万円 13.92万円 22.09万円 30.13万円 73.50万円
泉岳寺 14.07万円 13.34万円 16.50万円 24.31万円 32.33万円 51.50万円
北品川 11.72万円 12.60万円 14.62万円 18.80万円 17.50万円 33.45万円 55.90万円

都営三田線

駅名 ワンルーム 1K 1DK 1LDK 2K 2LDK 3LDK
芝浦ふ頭駅 14.20万円 12.68万円 13.92万円 22.09万円 30.13万円 73.50万円
三田 14.10万円 13.99万円 16.50万円 25.40万円 18.00万円 38.91万円 69.50万円
芝公園 13.57万円 14.63万円 15.75万円 31.47万円 76.22万円 153.00万円
御成門 15.68万円 14.14万円 30.10万円 53.52万円 185.00万円

ザ・ケンジントン・レジデンス芝浦に特徴の近い賃貸情報

ザ・ケンジントン・レジデンス芝浦に最寄り駅の近い賃貸情報

ザ・ケンジントン・レジデンス芝浦に特徴の近い中古マンション

ザ・ケンジントン・レジデンス芝浦に最寄り駅の近い中古マンション

芝浦ふ頭駅周辺のエリアから賃貸物件を探す

芝浦ふ頭駅周辺の駅から賃貸物件を探す

新交通ゆりかもめ 汐留駅 竹芝駅 日の出駅 お台場海浜公園駅
JR山手線 浜松町駅 田町駅 高輪ゲートウェイ駅 品川駅
都営大江戸線 勝どき駅 大門駅 赤羽橋駅
京急本線 泉岳寺駅 北品川駅
都営三田線 三田駅 芝公園駅 御成門駅
お気に入りに追加しました。